CapaCoustic Melapor е съставен от структура CD профили, перфорирани гипскартонени плоскости, монтирани съгласно указанията на производителя, специален акустичен материал (Akusticvlies), положен върху цялата повърхност и защитна мазилка с отворени пори.
Системата CapaCoustic Structure е предназначена за изпълнение на акустични повърхности без фуги, за вътрешно приложение. В повечето случаи тази акустична система се използва в участъка на тавана. Нанасянето върху вътрешните стени обикновено се извършва над височината със завишено механично натоварване, обикновено на височина над 2 м.
CapaCoustic Structure може да се нанася върху всички носещи повърхности. Особено внимание трябва да се обърне на факта, че в пространството над окачения таван, климатичните условия да са идентични с тези от помещението, в противен случай е възможна появата на конденз, улеснявайки се появата на замърсяване по повърхността.
Описание на материала / Компоненти на системата
Структура и покривен слой
Обичайна структура от CD 60/27 профили, неподвижно окачени и покривен слой от гипскартонени перфорирани плоскости, покрити с материал от задната страна, монтирани съгласно указанията на производителя.
CapaSol LF
Специален, неоцветен грунд, готов за нанасяне, на базата на акрил.
Съдържание: 10 / 25 литра.Capacoll GK
Лепило на базата на дисперсия, готово за нанасяне, за лепене на продукта CapaCoustic Premium Vlies върху вътрешни повърхности.
Съдържание: 10/16 kgCapaCoustic Premium Vlies
Специален стъклофибърен тапет с фабрично покритие, предназначен за повърхности порьозна мазилка CapaCoustic Spritzputz.
№ артикул: 038/21; Съдържание: 30 ml.CapaCoustic Spritzputz 1 mm
Порьозна мазилка, нанасяна с пръскане, готова на нанасяне, със свързващо вещество на базата на дисперсии. За получаване на повърхности финна мазилка.
№ артикул: 035/10; Съдържание: 25 kg.
Артикул | Разход |
CapaSol | ок. 150 ml/m2 |
Capacoll GK | ок. 200 g/m2 |
CapaCoustic Premium Vlies | 1 ml/m2 |
CapaCoustic Spritzputz | ок. 2 kg/m2 |
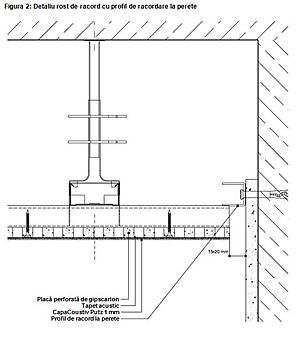
Фигура 1: Структура на системата CapaCoustic Structure
Звукопоглъщане
CapaCoustic Structure окачен
Вид | 125 | 250 | 500 | 1000 | 2000 | 4000 |
CA Структура, перфориране 12/25Q, пространство 200 mm | 0,45 | 0,55 | 0,59 | 0,48 | 0,42 | 0,38 |
Сфери на приложение
В помещенията с ревербация често се налага да се вземат мерки за регулиране на ехото. За тази цел се монтират звукопоглъщащи системи, с оглед намаляване на ехото.
Често се използват перфорирани гипскартонени плоскости, покрити със спаециалния продукт Akustikvlies.
Проникващата звукова енергия се намалява с помощта на пространството, намиращо се над фалшивия таван. Звуковата енергия намалява, тъй като с разпространението на звуковите вълни, газовите частици осцилират, като движението им се намалява поради триенето между частиците и стените на порьозните кухини на материала.
Типични сфери на приложение са следните:
Офиси и кол центрове
Продажбени халета
Ресторанти
Училища и детски градини
Конферентни зали
Учебни зали
Зали за звукозаписни студия, за музикално обучение.




