- Home
- | Продукти
- | Акустични системи
- | CapaCoustic Structure
- | CapaCoustic Spritzputz 1 mm
1. Tavan perforat
1.1 Substrucţie şi strat de acoperireÎnainte de începerea montajului trebuie stabilit sensul de montaj al tavanului, în funcţie de unghiul de incidenţă al luminii. Este optimal aşezarea rosturilor pe lungimea plăcilor în direcţia incidenţei luminii.
Tavanul fals se efectuează conform DIN 18 168, substrucţia se realizează , conform indicaţiilor producătorului, din profile CD 60/27 cu elemente adecvate de legături transversale şi longitudinale, rigid, suspendat prin intermediul elementelor de suspendare Nonius, fixat cu şuruburi şi dibluri conforme normelor în vigoare. Se vor respecta distanţele a, b şi c (vezi figura 1) conform indicaţiilor producătorului. Elementele montate în tavan cum ar fi lumini, difuzoare, ventilaţie, etc. se fixează separat sau pe substrucţie. Se vor respecta rosturile de dilataţie conform indicaţiilor producătorului de material pentru tavan şi conform condiţiilor constructive existente.
Rosturile de îmbinare a plăcilor vor fi executate conform indicaţiilor producătorului plăcilor (de ex. şpăcluire, montaj placă lângă placă).
Înainte de aplicarea acoperirilor ulterioare se va verifica planeitatea tuturor rosturilor, elementelor montate, etc. Suprafaţa trebuie să fie fără praf, substanţe separatoare şi alte impurităţi.
Este necesară asigurarea ventilării părţii posterioare a tavanului fals pentru evitarea condiţiilor diferite de presiune dintre spaţiul peste tavanul fals şi încăpere. Acest lucru poate fi realizat prin intermediul unui rost cu secţiune de min. 0,8% din suprafaţa totală a tavanului. Acest rost are de regulă o lăţime de cca. 2 cm.
2. Grunduirea tavanului
2.1 Pregătirea stratului suportStratul suport trebuie să fie uscat, fără murdărie şi substanţe separatoare. Aplicarea tencuielii nu acoperă zonele murdare. Trebuie acordat atenţie sporită la lucrări pentru evitarea apariţiei dungilor de umbră în cazul luminii laterale.
2.2 Aplicarea grundului Nediluat cu rolă din blană de miel (13 mm). 2.3 Consum cca. 100-150 ml/m2. 2.4 Temperatura de prelucrare Pe durata prelucrării şi uscării temperatura mediului înconjurător şi a suportului trebuie să fie de cel puțin +5°C. 2.5 Timp de uscarePoate fi reacoperit după cca. 12 ore în condițiile unei temperaturi de uscare de +20°C şi umiditate relativă a aerului de 65%. În cazul temperaturilor mai scăzute, timpii de uscare se prelungesc corespunzător.
3. Aplicarea tapetului pe tavan
3.1 Aplicarea adezivului Se aplică produsul Capacoll GK într-un strat bogat şi uniform cu o rolă din blană de miel (13 mm), se introduce imediat tapetul CapaCoustic Premium Vlies în stratul umed de adeziv şi se presează cu ajutorul unui şpaclu de tapet sau cu o rolă din cauciuc. 3.2 Modalitatea de montajTapetul se montează margine la margine, trebuie acordat atenţie asupra faptului ca marginea tapetului să se suprapună cu min. 10 cm cu marginea plăcii.
3.3 Consum Adeziv Capacoll GK cca. 200 g/m2. 3.4 Temperatura de prelucrarePe durata prelucrării şi uscării temperatura mediului înconjurător şi a suportului trebuie să fie de min. +5°C.
3.5 Timp de uscareEste uscat şi poate fi reacoperit după cca. 6-12 ore la temperatura de +20°C şi umiditatea relativă a aerului de 65%. Uscat în întregime după 3 zile. În cazul temperaturilor mai scăzute, timpii de uscare se prelungesc corespunzător.
4. Acoperirea cu tencuiala acustică
4.1 Pregătirea tencuieliiSe omogenizează bine (cca. 3 minute) produsul CapaCoustic Spritzputz 1 mm cu ajutorul unui malaxor curat.
4.2 AcoperireAcoperirea cu CapaCoustic Spritzputz 1 mm se realizează prin două operaţii de lucru decalate între ele de un timp de uscare de cca. 4-5 ore. Aplicarea tencuielii se realizează prin mişcări rotative în cruce.
4.3 Tehnică mecanizată
Pentru acoperirea tavanelor se utilizează instalaţii de pulverizare a tencuielilor cu melc de transport. Performanţa compresorului trebuie să fie de min. 600-800 l/min (ex. Strobel), ţeavă de pulverizare cu duză de 6,5 mm.
4.4 Consum Cantitate totală aplicată cca. 2 kg/m2. 4.5 Temperatura de prelucrareTemperatura încăperii nu are voie să scadă sub +12°C pe durata aplicării. Umiditatea relativă a aerului poate să fie de max. 70%.
4.6 Timp de uscareSe va respecta timpul de uscare dintre straturi de 4-5 ore, rezistenţa finală se obţine în funcţie de aerisire şi temperatură după cca. 12 ore.
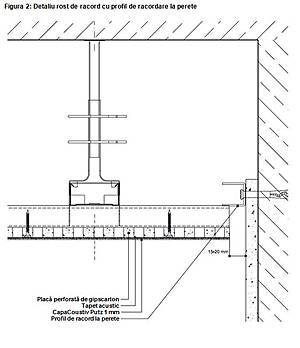
Figura 2: Detaliu rost de racord cu profil de racordare la perete

Condițiile de aplicare
Temperatura de prelucrare trebuie să fie de min. +12°C. Umiditatea relativă a aerului trebuie să fie de min. 30%, dar max. 70%!
Înainte de începerea lucrărilor trebuie stabilită direcţia de montaj a plăcilor în funcţie de unghiul de incidenţă a luminii.
Orientarea rosturilor dintre plăci în funcţie de unghiul de incidenţă a luminii (→90° faţă de ferestre).
Substrucţia, inclusiv plăcile de tavan, nu au voie să fie fixate de zonele pereţilor sau altor elemente constructive verticale. Nu vor fi utilizate în acest caz şuruburi sau alte elemente de fixare rigidă cu pereţii verticali.
Elementele tavanului cum ar fi corpurile de iluminat, galeriile de aerisire vor fi luate în considerare încă de la începutul montajului şi nu este admis ca acestea să solicite tavanul, ele fiind montate pe substrucţie.
După vopsire se va asigura imediat o ventilare adecvată a încăperilor.Nu este permisă încălzirea sau răcirea bruscă a încăperilor pe durata montajului şi al uscării. Acesta poate duce la formarea fisurilor.
Trebuiesc evitate diferenţele de presiune dintre zonele care se află deasupra tavanului fals şi încăpere, datorită faptului că acest lucru poate duce la murdărirea suprafeţei. Acest lucru poate fi obţinut prin dimensionarea corectă a rosturilor de racordare la suprafeţele verticale. În afară de acest lucru trebuiesc asigurate acelaşi condiţii climatice atât în zona deasupra tavanului cât şi în încăpere, în caz contrar, este posibilă formarea condensului şi astfel murdărirea suprafeţei.
Vă rugăm sa luaţi în considerare faptul ca în cazul luminii laterale pot fi vizibile şi cele mai mici denivelări la rosturile dintre plăci, elemente montate în tavan şi la şuruburi.
Măsuri de protecţieÎn cazul lucrărilor deasupra nivelului capului şi în cazul prezenţei prafului este obligatorie utilizarea măştilor de protecţie P1 şi al ochelarilor de protecţie.
Centru Suport Tehnic
Tel.:0800.800.600
E-mail: tehnic@caparol.ro



